The Allure of an Older Home
There’s something undeniably special about owning an older home. Whether it’s the character-filled moldings, the original hardwood floors, or the sense of history in every room, homes built in the early 20th century have a charm that can’t be replicated. Some potential homeowners are attracted to these houses because of their established neighborhoods and architectural details, just to name a few. These are also characteristics that new builds often lack.
But older homes aren’t without their compromises. Along with the original character often comes original layouts—particularly in areas like the kitchen and bathrooms. These spaces were designed for a different era, with smaller rooms and fewer amenities. That was exactly the case when our clients, Emily and Adam, purchased their 1920s home. They loved its charm and location, but their tiny primary bathroom wasn’t working for their lifestyle.
The Bathroom: Full of Character, Short on Space

The original bathroom had all the hallmarks of the era: a small built-in tub, a tiny vanity with minimal counter space, and a general lack of functionality. It wasn’t a space that invited relaxation—or even convenience. But with smart design solutions, some borrowed space, and thoughtful upgrades, our talented team was able to completely reimagine the room.
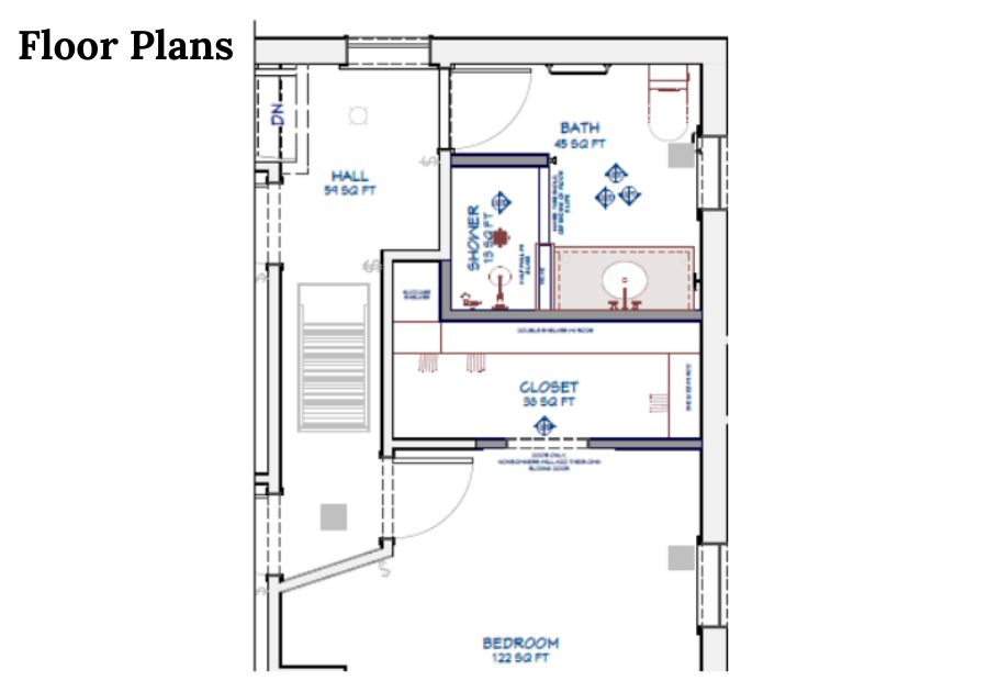
Smart Layout Decisions Save Space and Cost

One of our guiding design principles in older home renovations is to maintain as much of the original plumbing layout as possible to control costs.
In this project, we were able to keep the toilet in its original location, which helped the budget go further toward high-impact upgrades.
We also reoriented the bedroom closets to use space more efficiently. The result? Not only did the bathroom gain square footage, but the bedroom benefited from a better storage configuration as well.
Colorful, Functional and Full of Personality
Emily and Adam had a clear design vision: they wanted a space that felt soothing yet colorful, with design choices that reflected their personalities. The palette they chose was a beautiful blend of soft whites and rich, deep blues and greens.
We started with a clean foundation—white Zellige tile covers the wall behind the vanity, extending all the way to the ceiling for a polished and intentional look. The tile’s slightly irregular surface reflects light in unique ways, adding a sense of texture and movement. A Kohler wall-mounted faucet in Moderne Brass complements the modern freestanding vanity from West Elm, offering both style and functionality.

To bring in color and pattern, we added an accent wall in the shower area using blue and Umbria-toned tiles laid in a random yet harmonious pattern. The result is both bold and timeless—something the homeowners will love as much a decade from now as they do today.
A Spa-Like Shower in a Small Footprint

Rather than squeeze in a tub or bulky enclosure, we created a walk-in shower with a sleek, doorless design that maximizes space and accessibility. Inside, a rain showerhead and handheld spray from Kohler in Moderne Brass bring a touch of luxury to everyday routines.
A recessed shower niche adds practical storage while continuing the accent tile for a cohesive look.
Even the floor became a design feature: we paired classic hex tile for the main area with penny round tiles in Truffle and Gray Eye shades mixed with blues inside the shower—subtle nods to vintage style, reimagined with a modern twist.
Storage That Works Hard—and Looks Good!

One of the most dramatic functional upgrades was the new freestanding vanity. Compared to the original cramped sink, this piece provides ample storage for toiletries, cleaning supplies, and more, all while maintaining a streamlined look. Paired with modern sconces and a circular mirror, the vanity area is now both practical and Pinterest-worthy.
Love the Charm, Fix the Flow
Buying an older home doesn’t mean you have to settle for outdated functionality. When you partner with us to make your remodeling dreams come true, you can preserve the character you love while creating spaces that meet your needs today—and grow with you into tomorrow.
This project is a perfect example of how smart design and thoughtful remodeling can take a cramped, outdated space and turn it into a room that’s not just livable—but lovable.
Ready to Make Your Older Home Work for Modern living?
Let’s reimagine what’s possible—starting with the rooms that matter most. Contact us for a no-pressure chat today!